午夜看片网站生产厂家 不挑物料,不挑场景,可非标定制


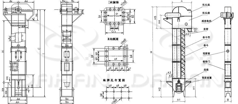
简介:胶带斗式提升机可提升各种粉状、粒状和块状(≤30mm)物料,物料温度≤120℃.
适用物料:适用于垂直输送粉状、粒状、及小块状的磨吸性较小的散状物料
应用领域:建材、冶金、化工、粮食等行业
全国统一销售热线:


胶带斗式提升机适用于垂直输送粉状、粒状、及小块状的磨吸性较小的散状物料,如粮食、煤、水泥、碎矿石等,提升高度不超过40m。TD型按JB3926-85《垂直斗式提升机》标准设计制造,目前国内常用的斗式提升机均为垂直式,较新型。胶带斗式提升机备有四种料斗Q型(浅斗)、H型(弧底斗)、ZD型(中深斗)SD型(深斗)。


胶带斗式提升机由运行部分(料斗与牵引胶带),带有传动滚筒的上部区段,带有拉紧滚筒的下部区段,中间机壳,驱动装置,逆止制动装置等组成,适用于向上输送松散密度ρ<1.5t/m3粉状、粒状和小块状的无磨琢性和半磨琢性散状物料,如煤、砂、焦末、水泥、碎矿石等。

胶带斗式提升机结构形式:传动装置胶带斗式提升机的传动装置有两种形式分别配有YZ型减速器ZQ(或YY)型减速器。YZ型轴减速器直接装在主轴轴头上,省去了传动平台、联轴器等,使结构紧凑、重量轻,而且其内部带有异型辊逆止器,逆止可靠。该减速器噪音低,运转平稳,并随主轴浮动,可消除安装应力。

1.驱动功率小,采用流入式喂料、诱导式卸料、大容量的料斗密集型布置,在物料提升时几乎无回料和挖料现象,因此无效功率少。

2.提升范围广,这类提升机对物料的种类、特性要求少,不但能提升一般粉状、小颗粒状物料,而且可提升磨琢性较大的物料.密封性好,环境污染少。

3.运行可靠性好,先进的设计原理和加工方法,保证了整机运行的可靠性,无故障时间超过2万小时。提升高度高,提升机运行平稳,因此可达到较高的提升高度。

4.使用寿命长,提升机的喂料采取流入式,无需用斗挖料,材料之间很少发生挤压和碰撞现象。本机在设计时保证物料在喂料、卸料时少有撒落,减少了机械磨损。

|
型号 |
TD160 |
TD250 |
TD315 |
TD400 |
||||||||||||
|
料斗形式 |
Q |
H |
ZD |
SD |
Q |
H |
ZD |
SD |
Q |
H |
ZD |
SD |
Q |
H |
ZD |
SD |
|
输送量(m3/h) |
5.4 |
9.6 |
9.6 |
16 |
12 |
22 |
23 |
35 |
17 |
30 |
25 |
40 |
24 |
46 |
41 |
66 |
|
斗宽(mm) |
160 |
250 |
315 |
400 |
||||||||||||
|
斗容(L) |
0.5 |
0.9 |
4.2 |
1.9 |
1.3 |
2.2 |
3.0 |
4.6 |
2 |
3.6 |
3.8 |
5.8 |
3.1 |
5.6 |
5.9 |
9.4 |
|
斗距(mm) |
280 |
350 |
360 |
450 |
400 |
500 |
480 |
560 |
||||||||
|
带宽(mm) |
200 |
300 |
400 |
500 |
||||||||||||
|
斗速(m/s) |
1.4 |
1.6 |
1.6 |
1.8 |
||||||||||||
|
物料量大块(mm) |
25 |
35 |
45 |
55 |
||||||||||||
|
型号 |
TD500 |
TD630 |
TD160 |
TD250 |
TD350 |
TD450 |
||||||||||
|
料斗形式 |
Q |
H |
ZD |
SD |
H |
ZD |
SD |
Q |
S |
Q |
S |
Q |
S |
Q |
S |
|
|
输送量(m3/h) |
38 |
70 |
58 |
92 |
85 |
89 |
142 |
4.7 |
8 |
18 |
22 |
25 |
42 |
50 |
72 |
|
|
斗宽(mm) |
500 |
630 |
160 |
250 |
350 |
450 |
||||||||||
|
斗容(L) |
4.8 |
9 |
9.3 |
15 |
14 |
14.6 |
23.5 |
0.65 |
1.1 |
2.6 |
3.2 |
7 |
7.8 |
14.5 |
15 |
|
|
斗距(mm) |
500 |
625 |
710 |
300 |
400 |
500 |
640 |
|||||||||
|
带宽(mm) |
600 |
700 |
200 |
300 |
400 |
500 |
||||||||||
|
斗速(m/s) |
1.8 |
2 |
1 |
1.25 |
1.25 |
1.25 |
||||||||||
|
物料量大块(mm) |
60 |
70 |
25 |
35 |
45 |
55 |
||||||||||
说明:
1.表中斗容为计算斗容,输送量按填充系数0.6计算得出。
2.斗提机料斗用途为:
浅料斗:输送潮湿、易结块、难抛出的物料。如湿沙、湿煤等。
深料斗:输送干燥的、松散的、易抛出的物料。如水泥、煤块、碎石、石英砂等。